V36 Carmen Victory Heights, Sports City | Apartment in Sports City

4 Bedroom Apartment in Dubai Sports City, Sports City
This magnificent four-bedroom villa boasts a private pool and spacious garden. Nestled in the tranquil community of Sports City, guests have the perfect blend of luxury and comfort. Surrounded by lush landscaped gardens and scenic parks, guests are spoilt for choice with a wide variety of nearby dining options. Golf enthusiasts will relish having two world-class courses within the community. Just 20 minutes from Dubai Marina and Bluewaters Island the city’s vibrant attractions are easy to visit.
Step into this stunning two story villa, where state-of-the-art amenities meet opulent design. The private swimming pool, framed by lush greenery and boasting golf course views creates a serene oasis perfect for relaxation or entertaining.
Inside, the villa features high-end furnishings and tastefully curated décor, offering an elegant yet welcoming atmosphere making it ideal for families or up to four couples.
Stay connected effortlessly with high-speed Wi-Fi throughout, averaging 250 Mbps. Whether lounging by the pool, hosting a dinner, or simply unwinding in the luxurious living spaces, this villa promises an unparalleled retreat in style and sophistication.
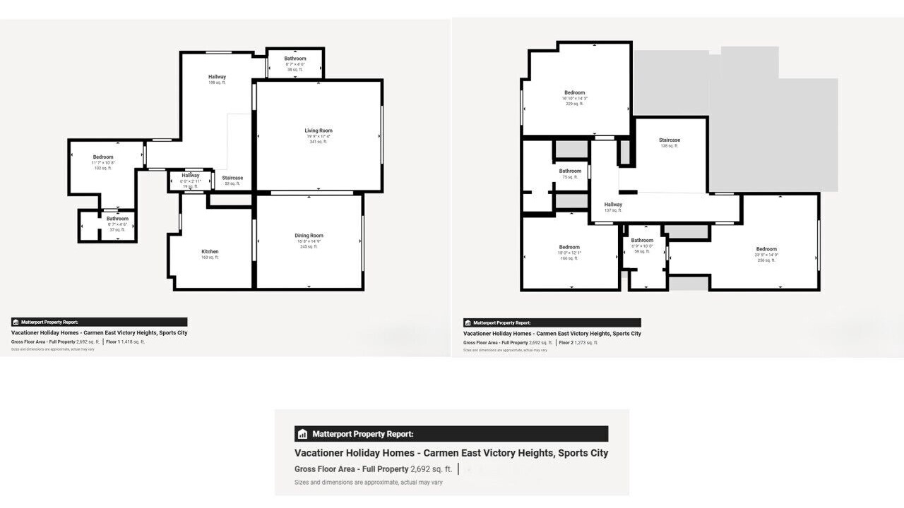
Downstairs:
Open Plan Living and Dining Area:
- Modern French-inspired closed kitchen elegantly designed with marble finishes and fully equipped with high-end appliances including stove, oven, toaster, kettle, fridge, built-in microwave and dishwasher
- Kitchen island featuring built-in storage and three bar chairs, combining practicality with casual dining
- The dining area features a large table that seats up to six people, with direct access to the outdoor space with private pool, seamlessly connecting indoor dining with outdoor leisure.
- Living area features two three-seater sofas and Smart TV
- Separate Laundry cupboard with washing machine and cleaning equipment
- Upgraded guest bathroom with bathroom essentials
- Private patio, a lush garden, and an outdoor seating area with a BBQ and swimming pool, creating a relaxing and inviting outdoor space
Fourth Bedroom :
- A double sized sofa bed offering flexible accommodation options for two guests
- Built-in wardrobe, providing convenient and organised storage
- En-suite bathroom with walk-in shower and bathroom essentials
Maids Room :
- A single-sized bed, suitable for one person.
- En-suite bathroom with walk-in shower and bathroom essentials
- Please note the room does not include a wardrobe or any storage cabinets.
Upstairs:
Master Bedroom:
- Double-sized bed to fit a maximum of two people
- Smart TV
- Walk-in closet with ample storage space
- En-suite bathroom with walk-in shower and bathroom essentials
- Small balcony overlooking the community
Second Bedroom:
- Double-sized bed to fit a maximum of two people
- Built-in wardrobe, providing convenient and organised storage space.
- Window bench, offering a cozy spot to sit and enjoy natural light or views.
Third Bedroom:
- King-sized bed to fit a maximum of two people
- Bedside wing chair
- Office table with a chair
- Two built-in wardrobes with ample storage space featuring mirrors
- Small balcony
The second and third bedrooms share a full bathroom equipped with a walk-in shower and essential amenities.
Villa Key Features:
- Spacious villa: 6,625.62 sq. ft. of space
- High-speed Wi-Fi with average speeds of 250mbps
- Hotel grade amenities including fluffy towels and linens
- Private garage space for a car, ensuring secure and convenient parking
- Private pool
- Outdoor Seating Area
- BBQ Facilities with alfresco dining
Please note that the area is somewhat isolated, and nearby attractions will require a taxi or car to reach. For your convenience, guests can use Deliveroo, Talabat, or the Instashop app to easily order food and groceries.
Our guest relations specialist will be available to assist with some queries during your day.
Points of interest nearby
Distances by car:
• Jumeirah Beach Residences (Public Beach) - 14.7 km
• Bluewaters Island (Ain Dubai) - 14.9 km
• Dubai Marina Mall - 17.6 km
• Skydive Dubai - 18.6 km
• Atlantis, The Palm - 21.9 km
• Kite Beach (Public Beach) - 23.3 km
• Burj Khalifa - 25.1 km
• Dubai Mall - 25.4 km
• Dubai Opera - 26 km
• Museum of the Future - 28 km
• Dubai Frame - 33 km
• Dubai International Airport - 36.5 km
There are many options for public transport around Dubai, we recommend the following:
- Taxi or cab that take cash or card
- You can use the Careem App to easily book private cars and taxi
- The Metro
- The Tram (going to Atlantis, The Palm)
House Rules and Guidelines
In order to ensure a pleasant stay for all guests, it is important to adhere to the house rules and guidelines set forth for this apartment.
These rules include:
- respecting the neighbors and the furniture,
- no parties
- no smoking, except in designated smoking areas outside the building or on the balcony
- no pets unless pre-arranged with the host
It is crucial for all guests to comply with the laws and regulations of Dubai at all times while staying in the apartment. This property is fully licensed with Dubai`s Department of Tourism and Commerce Marketing, ensuring a legitimate and safe accommodation option for our guests.
Prior to the check-in date, guests are required to submit soft copies of their passports for documentation purposes. The standard check-in time is 3:00 PM, and the check-out time is no later than 11:00 AM.
Please keep in mind that the included cleaning fee covers the apartment cleaning after your stay. If additional cleaning is needed during your stay, it can be arranged at an extra fee.
While a starter pack of toiletries is provided for your convenience, consumables such as cooking condiments, cleaning products, and additional toiletries are not supplied in the apartment. It`s recommended to plan accordingly.
Lastly, please be aware that Dubai is constantly developing, and as a result, there may be active construction or renovations within the community or building that could potentially cause disruptions.
This 4 Bedrooms Apartment provides accommodation with Guest Services, Kitchen, Laundry, for your convenience. This Apartment features many amenities for guests who want to stay for a few days, a weekend or probably a longer vacation with family, friends or group. The rental Apartment has 4 Bedrooms and 4 Bathrooms to make you feel right at home.
Check to see if this Apartment has the amenities you need and a location that makes this a great choice to stay in Dubai Sports City. Enjoy your stay in Dubai Sports City at this Apartment.
Amenities
Facility Overview
-
Air conditioning
-
Towels provided
-
Hair dryer
-
Bed sheets provided
-
Dining table
-
Living room
-
Kitchen island
-
Dishwasher
-
Oven
-
Refrigerator
-
Microwave
-
Stovetop
-
Toaster
-
Cookware/dishes/utensils
-
Washing machine and dryer
-
Onsite parking
-
Onsite parking options include a garage
-
No pets allowed
-
Smoke-free property
-
TV
-
English
-
Desk
-
Iron/ironing board
-
WiFi available
-
Balcony
-
Garden
-
Barbecue grill
-
Carbon monoxide detector not reported (host has not indicated whether there is a carbon monoxide detector on the property; consider bringing a portable detector)
-
Smoke detector not reported (host has not indicated whether there is a smoke detector on the property)
-
Private pool
Policies
Extra-person charges may apply and vary depending on property policy government-issued photo identification and a credit card, debit card, or cash deposit may be required at check-in for incidental charges host has not indicated whether there is a carbon monoxide detector on the property; consider bringing a portable detector with you on the trip host has not indicated whether there is a smoke detector on the property onsite parties or group events are strictly prohibited property registration number dub-v36-oslmw special requests are subject to availability upon check-in and may incur additional charges; special requests cannot be guaranteed this property has outdoor spaces, such as balconies, patios, terraces which may not be suitable for children; if you have concerns, we recommend contacting the property prior to your arrival to confirm they can accommodate you in a suitable room this property is managed through our partner, vrbo. you will receive an email from vrbo with a link to a vrbo account, where you can change or cancel your reservation